Rehau Artevo

Plastové okná REHAU Artevo

Plastové okná REHAU Artevo predstavujú spojenie moderného dizajnu, vysokej energetickej efektivity a inovatívnych technológií. Vďaka svojmu tenkému profilu poskytujú maximálny prísun svetla, pričom zachovávajú vynikajúce izolačné vlastnosti a dlhú životnosť. Tento systém je vhodný nielen pre moderné novostavby, ale aj pre rekonštrukcie, kde je kladený dôraz na minimalistický a nadčasový vzhľad.

Hlavné výhody REHAU Artevo

  • Maximálna energetická účinnosť: Systém REHAU Artevo dosahuje vynikajúce tepelnoizolačné hodnoty, čo vedie k zníženiu energetických nákladov. V kombinácii s trojitým zasklením je možné dosiahnuť hodnotu Uw až 0,79 W/m²K, čo zaručuje vysokú efektivitu aj v najnáročnejších klimatických podmienkach.
  • Tenký profil pre viac svetla: Úzky rám profilu zaručuje maximálny prísun denného svetla, čo prispieva k lepšiemu komfortu bývania a súčasne zlepšuje energetickú bilanciu objektu.
  • Moderný dizajn: Artevo vyniká moderným, minimalistickým dizajnom s rovným a uhladeným vzhľadom, ktorý dokonale ladí s modernými architektonickými trendmi.
  • Kompozitná technológia RAU-FIPRO X: Nová generácia kompozitného materiálu poskytuje vyššiu pevnosť, stabilitu a odolnosť proti deformácii. Okno je preto ideálne pre veľké presklené plochy bez nutnosti použitia oceľových výstuží.
  • Odolnosť a minimálna údržba: Kompozitný materiál je mimoriadne odolný voči poveternostným vplyvom, UV žiareniu a mechanickému poškodeniu, čím je zabezpečená dlhá životnosť okien bez potreby častej údržby.
  • Vysoká úroveň bezpečnosti: Systém umožňuje integráciu viacbodového zamykacieho mechanizmu a dodatočných bezpečnostných prvkov, ktoré môžu dosiahnuť až bezpečnostnú triedu RC3.
  • Ekologická udržateľnosť: Vďaka inovatívnej technológii REHAU je možné staré profily recyklovať a opätovne ich využívať pri výrobe nových okien, čím prispievame k ochrane životného prostredia.

Tepelná izolácia na najvyššej úrovni

Plastové okná REHAU Artevo sú navrhnuté s dôrazom na zníženie tepelných strát, čo sa prejavuje v ich vysokej energetickej efektivite. Systém disponuje vynikajúcou tepelnou izoláciou, ktorá prispieva k zníženiu nákladov na vykurovanie. V závislosti od použitých zasklievacích jednotiek môže byť hodnota Uw až 0,79 W/m²K, čo robí tieto okná vhodné aj pre pasívne domy.

Vďaka sofistikovanému dizajnu rámu a technológii RAU-FIPRO X, ktoré umožňujú integráciu väčších zasklených plôch bez kompromisov v tepelnej izolácii, sú tieto okná ideálnym riešením pre moderné stavby so zameraním na ekologickosť a komfort bývania.

Bezpečnosť na prvom mieste

Okrem skvelej izolácie a estetických výhod ponúka REHAU Artevo aj vysoký štandard bezpečnosti. Okno môže byť vybavené bezpečnostnými prvkami na ochranu pred vlámaním, ktoré dosahujú až triedu RC3. Systém ponúka možnosť inštalácie viacbodového uzamykacieho mechanizmu, čo zvyšuje úroveň ochrany.

Možnosti farebných prevedení

REHAU Artevo ponúka široký výber farebných variantov, ktoré je možné dokonale zladiť s exteriérom aj interiérom vašej stavby. Na výber sú rôzne dekory, od klasických bielych profilov až po moderné antracitové či drevodekory.

Vhodné pre pasívne domy

Systém REHAU Artevo sa vyznačuje výbornou tepelnou izoláciou, čo z neho robí ideálnu voľbu pre energeticky úsporné stavby, vrátane pasívnych domov. V kombinácii s vysokou priepustnosťou svetla a štíhlym dizajnom je optimálnou voľbou pre tých, ktorí hľadajú moderné a ekologické riešenie.

Ak máte záujem o viac informácií o tomto produkte alebo si chcete vyžiadať cenovú ponuku na mieru, napíšte nám prostredníctvom tohto formulára.


CHARAKTERISTIKA
HODNOTY / INFORMÁCIE
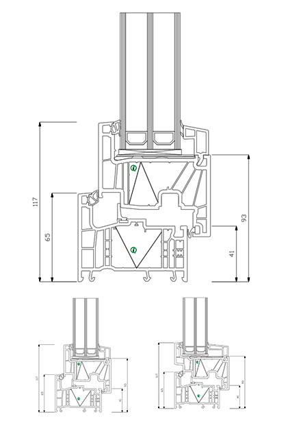
Pohľadová šírka rámu/krídla:
106 mm až 173 mm
(Švajčiarsko: 106 mm až 184 mm)
Konštrukčná hĺbka: 80 mm
Súčiniteľ prechodu tepla Uf (STN EN 12412-2 / STN EN 10077-2):
ARTEVO až do 0,97 W/m²K
ARTEVO max do 0,79 W/m²K
Vzduchová nepriezvučnosť Rw (STN EN ISO 717-1):
až 48 dB
Odolnosť proti vlámaniu (STN EN 1627):
až do triedy RC 3
Odolnosť proti zaťaženiu vetrom (STN EN 12210):
až do triedy B5
Vodotesnosť (STN EN 12208):
až do triedy 9A
Prievzdušnosť (STN EN 12207):
až do triedy 4
Odolnosť proti zaťaženiu vetrom
Trieda C5
Prievzdušnosť
Trieda 4
Maximálna hrúbka skla:
56 mm alebo 72 mm s plošne lícujúcim
krídlom


Štruktúrované sklá, okrasné sklá, ornamentálne sklá

  • SILVIT clearSILVIT clear
  • THELATHELA
  • MASTER - POINTMASTER - POINT
  • MASTER - LIGNEMASTER - LIGNE
  • MASTER - CARREMASTER - CARRE
  • MADERA clearMADERA clear
  • CHINCHILA clearCHINCHILA clear
  • KATHEDRAL MAXKATHEDRAL MAX
  • DUBOVÁ KORA clearDUBOVÁ KORA clear
  • DUBOVÁ KORA bronzDUBOVÁ KORA bronz
  • ALTDEUTSCH clearALTDEUTSCH clear
  • ALTDEUTSCH bronzALTDEUTSCH bronz
  • MateluxMatelux


Swispacer


Dnes sa štandardne dodávajú izolačné dvojsklá / trojsklá už s plastovým vymedzovacím rámčekom zvaným swisspacer a doteraz používané hliníkové dištančné rámiky sa už používajú zriedkavo.

Hliník, dokáže na kraji dvojskla vytvoriť tepelný most, ktorý sa vyznačuje svojou vodivosťou. V dôsledku tohto mosta sa okraj mosta často skvapalňuje, a tým stráca svoje pohodlie a zároveň dochádza aj k tepelným stratám.

Hlavne kvôli týmto, ale aj iným dôvodom je takzvaná –„teplá hrana“ dôležitou súčasťou šetrenia tepla. Swisspacer – teda „teplý rámik“ znižuje až 50-60% tepelných strát cez tepelný most, má teda extrémne nízku vodivosť.

Tepelné straty pri izolačných dvojsklách sú spôsobené veľmi nízkym koeficientom vodivosti swisspacera, ktorý sa vyrába z plastu so sklenenými vláknami, a tak zaručujú tepelnú vodivosť nižšiu ako 0,2 W/mK, teda 1000 krát menšiu, ako pri hliníkových, pri ktorých je vodivosť 200W/mK.

Swisspacer zaručuje nižšie náklady na vykurovania a lepšiu izoláciu, vyniká totiž svojou optimalizovaným odporom úniku tepla. Unikanie tepla je so swisspacerom minimálne o 0.1 W/m2K nižší, než pri klasických hliníkových rámčekoch.

Výsledok je teda taký, že náklady na vykurovanie sa znižujú o 5% vďaka swisspaceru. Redukuje to náš rozpočet a vďaka zníženiu emisií CO2 je aj šetrné k prostrediu.

Tým, že sa vyššie teploty zachovávajú na vnútorných hranách sklených tabúľ, značne sa znižuje možnosť vznikania zrážok. Toto ďalej znižuje vznik plesní na oknách.

Ako estetický prvok swisspaceru vyzdvihujeme to, že jeho spojovacie rošty sú pravouhlé a so svojím matným povrchom pôsobí harmonicky.Rámik swisspacer je svojím vzhľadom identický s hliníkovými rámikmi, preto ich použitie je možné u rovnakých typov dvojskiel.


Bezpečnostné sklá

Na ochranu proti vniknutiu vznikajú plošným spojením dvoch, či viacerých vrstiev skla a špeciálnych fólií s vysokou pevnosťou a elasticitou.

Vrstvené bezpečnostné sklo ESG (lepené bezpečnostné sklo VSG) je vynikajúcim prvkom pre bezpečnostné zasklievanie otvorov v stavebných konštrukciách a dá sa použiť aj v najnáročnejších architektonických návrhoch pri použití v horizontálnej, vertikálnej alebo šikmej polohe. Vrstvené sklo sa vyrába plošným spojením dvoch a viac vrstiev skla s jednou alebo niekoľkými vrstvami polyvinylbutyralovej fólie s vysokou pevnosťou, adhéziou a elasticitou.Pri rozbití vrstveného skla črepiny zostávajú na fólií, čím sa znižuje alebo úplne vylučuje poranenie osôb.

Pri vhodnej skladbe je vrstvené bezpečnostné sklo schopné klásť značný odpor aj pri opakovaných násilných útokoch (napr. kladivom, sekerou, streľbou a pod.) za účelom vniknutia do chráneného objektu (prienik pri zločineckom alebo teroristickom útoku). Vrstvené sklo vyrobené z reflexných skiel a skiel farbených v hmote umožňuje dosiahnuť širokú paletu farieb, ktoré sa vyznačuje vysokým estetickým efektom, ale aj veľmi účinnou ochranou proti slnečnému UV žiareniu.

Vrstvené bezpečnostné sklo sa využíva aj ako účinnú zvukovú izoláciu, ktorá narastá so zvyšujúcim počtom vrstiev skla. Bezpečnostné sklo vrstvené je použiteľné pri teplotách od -30°C do +60°C. Bezpečnostné sklo VBS V je možné použiť aj do izolačného skla.


Reflexné, protislnečné sklá

Tvoria účinnú ochranu proti slnečnému žiareniu. Tenkou vrstvou oxidov kovov alebo koncentráciou pigmentu vo farebných fóliách medzi vrstvami skla je možné.

Protislnečné sklá je možné rozdeliť na sklá:

  • s absorbčnou charakteristikou (sklá Planibel)
  • s absorbčnou a reflexnou charakteristikou (sklá Stopsol, Stopray, Solarbel)

Planibel – s absorbčnou charakteristikou zafarbené v hmote vo farbách bronz, zelená, šedá.

So vzrastajúcou plochou sklenej výplne stúpa preteplenie interiéru vplyvom slnečného žiarenia. Ak sa nahradí vonkajšia číra tabuľa sklom s absorbčnou či reflexnou charakteristikou, odbúrajú sa nepriaznivé vplyvy nadmerného vstupu slnečnej energie do miestnosti. To umožňuje podstatne znížiť náklady na udržiavanie prijateľnej teploty v interiéri v priebehu celého roka.

Stopsol – je reflexné protislnečné sklo s veľmi tenkou pyroliticky nanesenou vrstvou oxidov kovov. Táto vrstva je veľmi trvanlivá, a preto je možné orientovať ju tak von, ako aj dovnútra izolačného dvojskla. Orientácia vrstvy oxidov kovu ovplyvňuje hodnotu reflexie a rovnako konečný farebný odtieň skla. Sklo Stopsol sa vyrába v dvoch variantoch – Stopsol Classic so strieborným odrazom s ľahko jantárovým odtieňom a Stopsol Supersilver so strieborno-modrým leskom.

Stopray – je reflexné sklo s veľmi tenkou vrstvou vzácneho kovu, ktoré zabezpečuje vynikajúcu ochranu pred nežiadúcim vstupom slnečnej energie a zároveň významne zlepšuje tepelnoizolačné vlastnosti dvojskla. Vrstva vzácneho kovu na povrchu skla musí byť orientovaná vždy smerom do dutiny, aby nedošlo k jej poškodeniu. Stopray sa vyrába v širokej škále farebných odtieňov, čo z nej (spoločne s technickými charakteristikami) robí ideálny materiál pre architektúru. Významným argumentom pre použitie skla Stopray je okrem zmienených vlastností tiež fakt, že i napriek vysokej účinnosti ochrany proti vstupu slnečnej energie nie je obmedzený prestup tepla do interiéru.

Solarbel – je sklo, na ktorom sú elektromagneticky nanesené zliatiny kovov. Solarbel zaisťuje ochranu pred nadmerným vstupom slnečnej energie, pričom vykazuje široké spektrum hodnôt priepustnosti svetla a svetelného odrazu. Pokovena vrstva je vždy orientovaná smerom do dutiny. Použitím skla Solarbel v izolačnom dvojskle dochádza k nezanedbateľnému zlepšovaniu tepelnoizolačných vlastností.


Sklá s okrasnými a bezpečnostnými mriežkami

Medzi vrstvami skla v rôznych tvaroch, hrúbkach a povrchovej úprave.

Mriežky do skiel

Za účelom naviazania do starodávneho štýlu architektúry výrobca TOP-PLAST ponúka široký výber mriežok – dekoračných elementov do okien a dverí. Vďaka nim interiér získa výnimočné čaro a fasáda domu získa neopakovateľný vzhľad. Mriežky sú dostupné ako vnútorné /medzi tabuľami/ alebo vonkajšie /nalepené/. Dostupné sú v rôznych šírkach a farbách, môžeme ich prispôsobiť do individuálneho vzoru okna.


Izolačné sklo

SGG CLIMAPLUS / SGG CLIMATOP
Výrobok High–Tech v oblasti tepelných izolácií

Prečo sklo s tepelnoizolačnými vlastnosťami?
Sklom uniká vždy určité množstvo tepla z vykurovaných miestností. Ani u iných materiálov to nie je inak. Otázka je: koľko tepla musí uniknúť alebo koľko tepla sa môže stratiť? Na uvedenú otázku môžeme odpovedať: menej ako polovica oproti tradičným sklám.

V posledných rokoch prešiel vývoj tepelnoizolačných skiel veľmi rýchlym rozvojom a emisivita týchto skiel sa dostala až na hodnotu ε = 0,01.Nová generácia tepelnoizolačných skiel udržuje v dome teplo.

Čo to znamená pre Vás? Výrazné zníženie nákladov na vykurovanie a prostredie Vášho bytu bude bez chladných zón.

Znamená to však tiež mimoriadne veľké úspory energie, spojenej so znížením emisie plynov vzniknutých pri spaľovaní oxidu uhličitého a siričitého.

Podobný účinok, ako má katalyzátor v aute, má tepelnoizolačné sklo v dome: citeľne zlepšuje životné prostredie.Tepelnoizolačné sklá ochraňujú a šetria životné prostredie, šetria náklady na vykurovanie a zaisťujú príjemné prostredie bytu.

Poznámka:
Emisivita je definovaná ako pomer intenzity vyžarovania reálného telesa k intenzite vyžarovania abslolútne čierneho telesa s rovnakou teplotou.